As a homeowner, you might wonder why detailed construction documents are necessary for your landscape project. You may assume that a contractor can simply "figure it out" based on a general concept or discussion. However, without precise construction plans, critical details are left up to interpretation, which can lead to miscommunication, unexpected costs, and an end result that doesn’t match your vision.
Here’s why construction documents are a crucial step in ensuring your landscape is built correctly, efficiently, and to the highest quality:

Without detailed construction documents, contractors have no clear standard to base their pricing on. This can result in wildly different bids—some too low because they don’t account for all necessary work, and others too high due to uncertainty.✔ With clear plans, every contractor bids on the same scope of work, making comparisons fair and accurate.✔ You get realistic pricing upfront, preventing costly surprises once construction starts.✔ Contractors can't cut corners by eliminating important elements that were only loosely discussed.

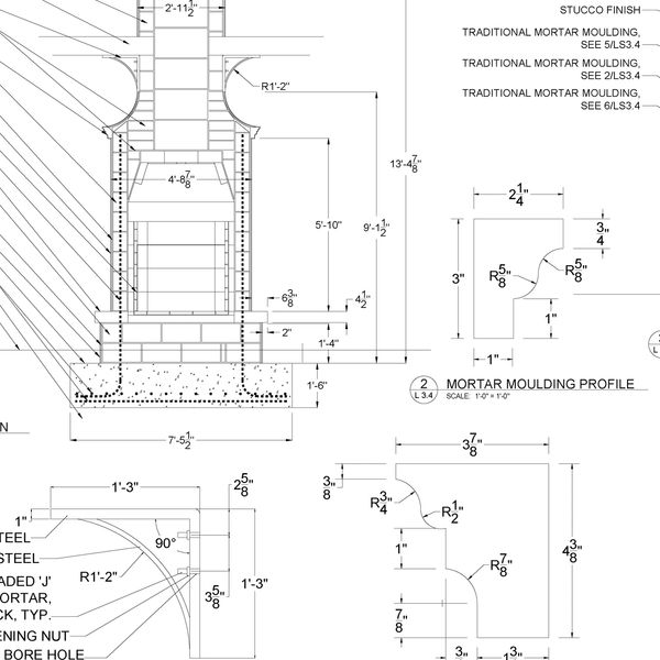
A great design is only as good as its execution. Without construction drawings, measurements, materials, and structural details are left up to guesswork. That means what you envisioned may not be what gets built.
✔ Construction documents include exact dimensions, materials, and specifications, ensuring everything is installed correctly.
✔ Grading, drainage, paving, planting, lighting, and other key elements are mapped out with precision.
✔ You avoid costly rework due to incorrect installations.

You’ve worked hard to develop a beautiful, functional design that meets your needs. Without construction drawings, the final product is left in the hands of the contractor, who may:
❌ Change details to fit their own preferences
❌ Substitute cheaper materials
❌ Modify dimensions or layouts due to convenience
✔ With construction documents, your vision is clearly documented so the contractor must follow it precisely.
✔ It ensures the project remains cohesive, functional, and aesthetically aligned with your goals.

Verbal agreements are risky in construction. Without written documentation, contractors cannot be held accountable for missing or poorly executed elements of the project.
✔ A set of stamped construction documents serves as a legal agreement between you and the contractor.
✔ If something isn’t built to plan, you have proof to require corrections before final payments are made.
✔ It prevents disputes by clearly outlining expectations, avoiding "he said, she said" situations.

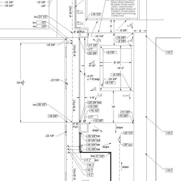
A well-designed landscape isn’t just about looks—it’s about durability, function, and long-term value. Proper construction detailing ensures that hardscapes, drainage, and structures are built to last, not just to look good on day one.
✔ Foundation work, grading, and material specifications are documented to prevent future failure.
✔ A well-planned drainage system avoids water damage, erosion, and flooding issues.
✔ Structural elements like walls, pergolas, and paving are built to withstand weather and wear over time.

No. We focus on design and project planning, not physical installation. However, we guide you through a competitive bid process to secure the best price and oversee the installation to ensure quality and adherence to the design.

No, sorry. Only my own.

I'm not sure yet. Tell me about your project and if its a good fit we can schedule an on-site meeting. Once we do that I can get you a proposal.

Yes, solving drainage issues is one of our specialties. We analyze your site by shooting grades, taking measurements, and notating existing conditions. We would like this to be part of a larger design for you, so be prepared to make everything better.
Copyright © 2024 Magnolia Landscape Architecture, inc. - All Rights Reserved. PHONE:504.460.9780. ADDRESS:1521 GaRDENIA DRIVE, METAIRIE, LA 70005
We use cookies to analyze website traffic and optimize your website experience. By accepting our use of cookies, your data will be aggregated with all other user data.